خبرني - أصدرت سلطات الاحتلال قرارا عسكريا يقضي بوضع اليد والاستيلاء على ما يقارب ثلاثة دونما من أراضي قرية حارس غرب سلفيت، لأغراض عسكرية.
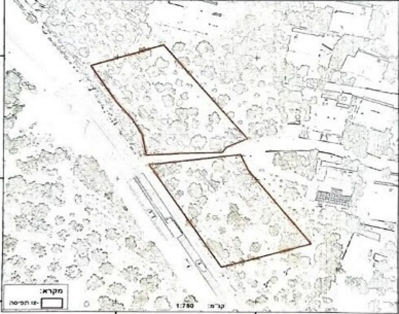
وأفاد رئيس مجلس قروي حارس الشيخ عمر سمارة، بأن ما يُسمى قائد جيش الاحتلال أصدر أمرا عسكريا يقضي بالاستيلاء على دونمين و791 مترا من أراضي حارس، ضمن حوض رقم (3) في منطقة "واد عود".
وأوضح سمارة أن الأراضي المستهدفة تقع بالقرب من الشارع الرئيسي في المنطقة الغربية من القرية، وتعود ملكية الاراضي لكل من، ورثة المرحوم احمد سمارة، وورثة المرحوم علي شملاوي، وورثة المرحوم علي صوف.
وأشار إلى أن سلطات الاحتلال منحت أصحاب الأراضي المتضررة مهلة لا تتجاوز 24 ساعة للاعتراض على القرار، مؤكدا أن هذه الفترة غير كافية، وتأتي في إطار محاولات الاحتلال لفرض الأمر الواقع على الأرض.
ودعا سمارة المؤسسات الحقوقية والدولية إلى التدخل العاجل لوقف هذا القرار الذي يهدد بمصادرة مساحات واسعة من الأراضي الزراعية والمملوكة لأهالي القرية.




